
Woningen De Craene
Beschrijving
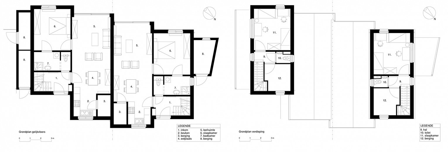
Een cluster van drie woningen die als kleine loodsen aansluiten op de spoorinfrastructuur.
De drie woningen zijn gelijk. Enkel door spiegeling en verschuiving wordt een variatie bekomen. De hoge en lage gebouwen verwijzen naar de werkplaatsen die vaak tegenaan de spoorwegen werden gebouwd. De afwisseling tussen hoge en lage bebouwing zorgt voor een open karakter van de huizengroep en verzekert de overgang naar het parkje aan de noordkant van de woningen.

