
Apotheek Serpentier
Beschrijving
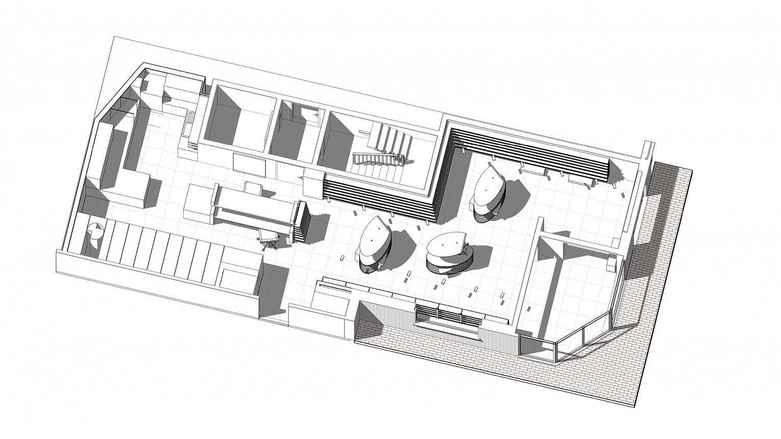
Een erg kleine ruimte met laag plafond werd onder handen genomen door het bestaande verlaagde plafond weg te nemen, door opbouwarmaturen te voorzien, door kasten weg te nemen en te vervangen door legplanken rechtstreeks op de muren. De balie werd verwijderd en vervangen door kleine losstaande organische elementen die los in de ruimte zijn verspreid.
Een voormalige garage werd mee geïntegreerd en gaf zo de mogelijkheid de bereidingsruimte efficiënt in te planten.
Het bureel is een structurerend element in de ruimte die de afscheiding vormt tussen bereidingen en publieksruimte. Hierdoor fungeert het bureel als centrale as van de apotheek.

