
Apotheek Steevens
Beschrijving
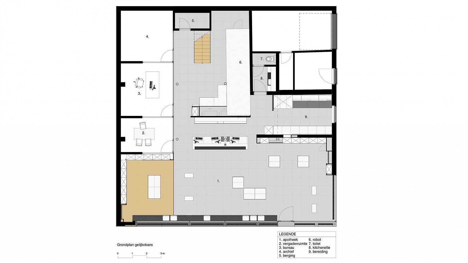
Een bankkantoor werd omgebouwd tot moderne apotheek. Door integratie van een robot als stockageruimte voor medicamenten werd een apotheek gecreëerd die het mogelijk maakt alle aandacht naar de klant te oriënteren. De publieksruimte is een flexibele invulling met verplaatsbare elementen.
De bestaande wanden en plafonds werden behouden en waar nodig licht aangepast en aangevuld.
Hierdoor werden middelen vrijgemaakt om te investeren in balies, bereidingsruimte, robot enzovoort.

