
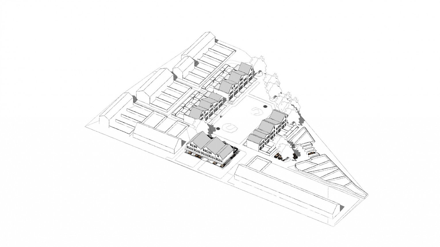
Als uitgangspunt wordt een centraal groen plein ontworpen waar alle woningen op uitkijken. De voordeur van iedere woning richt zich naar dit gemeenschappelijke groene plein: een gemeenschappelijke tuin, een park, een speelweide, een flaneerzone, een rustpunt, een plek waar het leuk vertoeven is.
Tussen de Sint-Godelievelaan en’t Groenhof worden de woningen geplaatst op een verhoogd plateau. Hierdoor wordt een bijzonder zicht gecreëerd vanop het openbaar domein – onder de gebouwen door - naar ’t Groenhof.
De stalling van de wagens gebeurt onder deze woningen. Door het maaiveld er één meter te laten zakken vormen de wagens geen belemmering voor het doorzicht onder het gebouw naar ‘t Groenhof.
De wagens worden grotendeels uit het gebied gehouden.
De wandelpaden naar de woningen worden zo voorzien dat er met de wagen tot voor de woning kan worden gereden voor laden en lossen.
De woningen worden als rijwoningen ontworpen die telkens uitgevoerd zjin in een ander kleur metselwerk om de herkenbaarheid te accentueren.
.

