
Dit project betreft de vervangingsbouw van een volledig verouderd gebouw met 8 sociale huurappartementen.
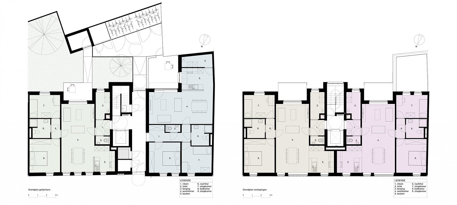
In de huidige situatie richten de leefruimten zich enkel op de volledig verharde binnenkoer. De huidige voorgevel heeft weinig tot geen interactie met de straat. Het nieuwe gebouw beschikt, met uitzondering van één appartement op het gelijkvloers, over ruime doorzon appartementen waar de eetkamers en keukens uitkijken op de straat. Achteraan worden er grote leefterassen voorzien die uitkijken op een groene binnentuin en daarenboven maximaal profiteren van de oriëntatie.
Het nieuwe gebouw beantwoordt aan de tegenmoet komende eisen op vlak van EPB en wordt voorzien van hernieuwbare energie in de vorm van zonnepanelen.
De gevel legt met zijn strakke ritmische raamindeling en verticale donkergrijze balustrades een link naar de repeterende gevelindelingen van de Belle Epoque periode. Het gelijkvloers springt deels in zodat de gemeenschappelijke inkomdeur geaccentueerd wordt en er visueel een sokkel gecreëerd wordt.
Als basis wordt een donkerbruine verlijmde handvormsteen toegepast. Het rasterpatroon wordt verder ingevuld met respectievelijk verticaal donkergrijs buitenschrijnwerk en speelse contrasterende kleurtoetsen in verticaal verlijmde parementstenen.

