
Immo François
Beschrijving
Grote Markt
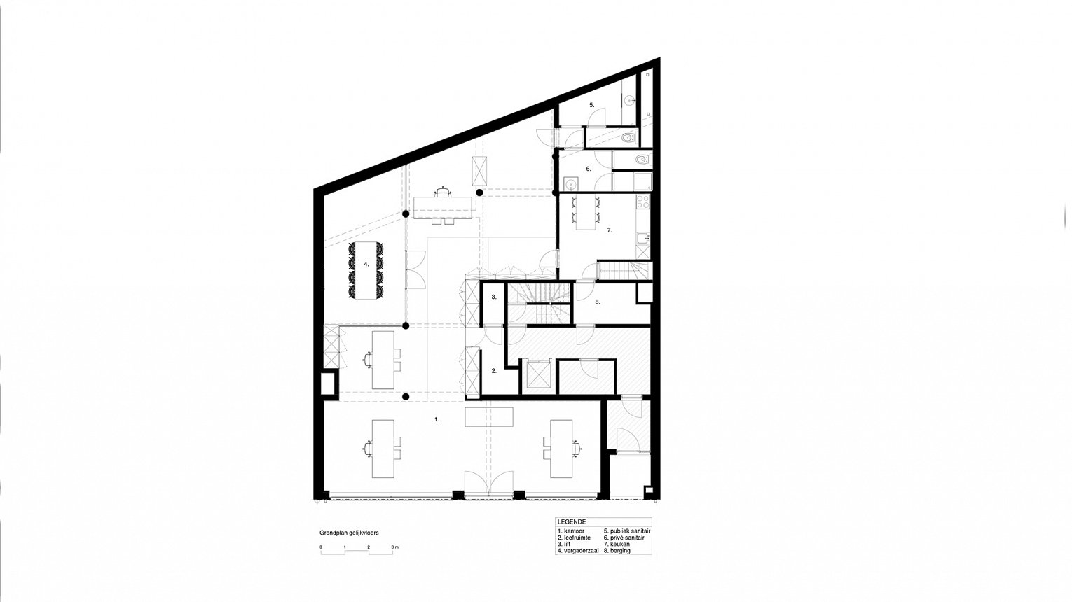
De handelsruimte die voordien fungeerde als café werd herbestemd naar een immobiliënkantoor.
Aan de voorgevel wijzigt enkel de invulling van het buitenschrijnwerkgeheel van het betreffende handelsgelijkvloers. Intern onderging het pand een grondige make-over.

